Skip to content Skip to sidebar Skip to footer

45 draw and label a handball court

Official Handball Court: Size, Lines and Areas - Dicas Educação Física Handball Court Size The playing court is 40 meters long and 20 meters wide rectangle, consisting of two goal areas and a playing area. The longer boundary lines are called side lines, and the shorter ones are called goal lines (between the goalposts) or outer goal lines (on either side of the goal). Safety Zone Handball Court Dimensions in Meters | Pitch Size Diagram - THE UK RULES All handball court markings should be prominent and of the same color. Handball court dimensions in metres should have line markings which are 5 centimetres (2 inches) thick. The only rule exception is for the goal line, which should be eight (8) centimetres (3 inches) thick.

One-Wall Rulebook - US HANDBALL Handball courts shall be divided and marked on the floors with 2-inch wide lines. Recommended colors are white, yellow, or red. The lines shall be marked as follows: 1) Short line. The short line runs parallel to the wall, between the side lines, with its back edge 16 feet from the wall. 2) Long line.

Draw and label a handball court

Draw and label a handball court

106 Volleyball Court Drawing Illustrations & Clip Art - iStock Browse 106 volleyball court drawing stock illustrations and vector graphics available royalty-free, or start a new search to explore more great stock images and vector art. Sort by: Most popular Square mesh abstract pattern, soccer net. Football gates isolated. Soccer net. Square mesh abstract pattern. Football gates isolated. Draw a neat labelled diagram of a Handball court giving all its ... Neat label diagram. ... Draw a neat diagram of a Handball court giving all its measurements. asked Aug 5, 2020 in General by mubarak02 ... 1 answer. 1. What area comprises the safety zone in a Handball court? 2. What is the restraining line meant for? 3. Explain the term 'throw off. asked Aug 6, 2020 in General by Bablu01 (51.5k points ... Handball Dimensions & Drawings | Dimensions.com Handball Court DWG (FT) DWG (M) SVG JPG 3DM (FT) 3DM (M) OBJ SKP 3D Handball Goal DWG (FT) DWG (M) SVG JPG 3DM (FT) 3DM (M) OBJ SKP 3D Related Sports Collections Sports View the Category Our database is made possible by displaying online advertisments to our visitors. Please consider supporting us by disabling your ad blocker.

Draw and label a handball court. Handball Court Dimensions & Drawings | Dimensions.com Handball Court DWG (FT) DWG (M) SVG JPG 3DM (FT) 3DM (M) OBJ SKP 3D Handball - Size 3 DWG (FT) DWG (M) SVG JPG 3DM (FT) 3DM (M) OBJ SKP 3D Handball Goal DWG (FT) DWG (M) SVG JPG 3DM (FT) 3DM (M) OBJ SKP 3D Our database is made possible by displaying online advertisments to our visitors. Please consider supporting us by disabling your ad blocker. Handball court easy marking plan - YouTube Handball court easy marking plan - YouTube Download Physical Education app (PE PORTAL) belowFor Android : iPhone & iPad :... Draw Handball Drills, Videos and Coaching Plans | Sportplan draw DRILLS View All 14. hit the target 556 power training : throwing 4 vs 4 - Make the Space 526 ballcirculation Attacking Pairs 2 - One-Two Pass 116 passing/intercepting + finding space and defending Draw in the defender - Running center shot 560 complex shooting exercises Drawing in the defender - 2 vs 1 The Handball Court | realbuzz.com The handball court — measures 40m x 20m (131.25ft x 65.62ft). The handball goal — 2m (6.56ft) tall and 3m (9.84ft) wide. 6m line — the dividing line between goalkeepers and the rest of the players. 7m line — where penalty shots are taken following fouls on players with a clear shooting chance on goal. 9m line — an arcing dotted line ...

Detailed Measurements and Dimensions of a Handball Court The handball court is 40 meters long and 20 meters wide, and is equally divided by the center line. The goal is 3 meters wide and 2 meters in height. Here we give you a handball court diagram to let you know the dimensions of the court, goal, and the substitution area and help you understand the sport better. Team Handball Court Dimensions - SportsKnowHow.com Court and Lines: The indoor court has a hard surface. All lines are 5 centimeters (2 inches) thick; the only exception is the goal line, which is 8 centimeters (3 inches) thick. All lines must be prominent and of the same color. Sidelines and Goal Lines: The overall size of the court is 40 meters (44 yards) long by 20 meters (22 yards) wide. Handball Court Diagram : Handball Court Dimensions ... - Blogger The handball court is 40 meters long and 20 meters wide, and is equally divided by the center line. Team handball court dimensions diagram. Handball playing court without labels.svg 467 × 902; 1 goalie (see specific rules below). A handball court can have 1, 3, or 4 walls. 50+ vectors, stock photos & psd files. Basketball Court Diagram and Basketball Positions | Basketball Court ... Use this template of American professional basketball court to draw basketball court dimensions diagrams. The template "Basketball court dimensions" for the ConceptDraw PRO diagramming and vector drawing software is included in the Basketball solution from the Sport area of ConceptDraw Solution Park. Used Solutions Sport > Basketball

Handball Rules for Kids at Home or School - Families Magazine Some kids playing handball like to take chalk and draw their own handball court or extend the existing court with more sqaures to extend the size of the game. School handball court size in Australia. You school handball court size can be any size to fit the space you have. Generally we make the court 3meters x 3 meters. Court | sports | Britannica handball In handball: The court. Standard four-wall courts are 40 feet long, 20 feet wide, and 20 feet high, with a back wall 12 to 14 feet high. A short line, parallel to the front wall, divides the court in half; the service line is parallel to and 5… Read More netball In netball Building a Wall-ball Court : 9 Steps (with Pictures) - Instructables Step 1: The Design. The design for this wall went through many variations. In the end there were a few parameters that dictated how it could be constructed. The location of the wall on the exposed blacktop near the San Francisco Bay meant that the design had to compensate for the possibility of high winds. Rules & Info - US HANDBALL Handball courts shall be divided and marked on the floors with 2-inch-wide lines. Recommended colors are white or red. The lines shall be marked as follows: 1. Short line. The short line is parallel to the front and back walls. Its outside edge is 20 feet from the front wall. 2. Service line.

Vektor Lapangan Handball Ilustrasi Stok - Unduh Gambar ...

Vektor Lapangan Handball Ilustrasi Stok - Unduh Gambar ...

Drawing And Labeling Of A Volleyball Court - conceptdraw.com Labeled Diagram Of Play Field Of Football. Drawing And Label A Basketball Court. Volleyball court dimensions | Recreation signs - Vector stencils ... Draw A Football Pitch And Label. Draw And Label The Basketball Court With Full Dimension. ERD | Entity Relationship Diagrams, ERD Software for Mac and Win.

International Handball Federation on Twitter:

International Handball Federation on Twitter: "#Handball The ...

Handball - The court. | Britannica The court. The. court. . Standard four-wall courts are 40 feet long, 20 feet wide, and 20 feet high, with a back wall 12 to 14 feet high. A short line, parallel to the front wall, divides the court in half; the service line is parallel to and 5 feet in front of the short line. Between these two lines on each side of the court is a service box ...

Handball court measurements | Handball court length | Length and width of  handball court

Handball court measurements | Handball court length | Length and width of handball court

handball court dimensions / handball court measurements / handball ... 9.84K subscribers Subscribe 12K views 2 years ago #handball #sportsinformation This video is about a handball court dimensions.This video is create for people to get handball information. in...

File:Field Handball field diagram -de.svg - Wikimedia Commons

File:Field Handball field diagram -de.svg - Wikimedia Commons

Handball Dimensions & Drawings | Dimensions.com Handball Court DWG (FT) DWG (M) SVG JPG 3DM (FT) 3DM (M) OBJ SKP 3D Handball Goal DWG (FT) DWG (M) SVG JPG 3DM (FT) 3DM (M) OBJ SKP 3D Related Sports Collections Sports View the Category Our database is made possible by displaying online advertisments to our visitors. Please consider supporting us by disabling your ad blocker.

Draw a neat diagram of a Handball court giving all its ...

Draw a neat diagram of a Handball court giving all its ...

Draw a neat labelled diagram of a Handball court giving all its ... Neat label diagram. ... Draw a neat diagram of a Handball court giving all its measurements. asked Aug 5, 2020 in General by mubarak02 ... 1 answer. 1. What area comprises the safety zone in a Handball court? 2. What is the restraining line meant for? 3. Explain the term 'throw off. asked Aug 6, 2020 in General by Bablu01 (51.5k points ...

Handball court easy marking plan

Handball court easy marking plan

106 Volleyball Court Drawing Illustrations & Clip Art - iStock Browse 106 volleyball court drawing stock illustrations and vector graphics available royalty-free, or start a new search to explore more great stock images and vector art. Sort by: Most popular Square mesh abstract pattern, soccer net. Football gates isolated. Soccer net. Square mesh abstract pattern. Football gates isolated.

Detailed Measurements and Dimensions of a Handball Court ...

Detailed Measurements and Dimensions of a Handball Court ...

Detailed Measurements and Dimensions of a Handball Court ...

Detailed Measurements and Dimensions of a Handball Court ...

Handball Court Png Meters Positions Basic Basketball ...

Handball Court Png Meters Positions Basic Basketball ...

File:Outdoor Handball Field Dimensions.svg - Wikimedia Commons

File:Outdoor Handball Field Dimensions.svg - Wikimedia Commons

The Handball Court | realbuzz.com

The Handball Court | realbuzz.com

Handball Court With Markings, 3d Render Stock Photo, Picture ...

Handball Court With Markings, 3d Render Stock Photo, Picture ...

Tennis Court Dimensions & Size | Harrod Sport

Tennis Court Dimensions & Size | Harrod Sport

Handball Court png images | PNGWing

Handball Court png images | PNGWing

File:Handball Court Dimensions.jpg - Wikimedia Commons

File:Handball Court Dimensions.jpg - Wikimedia Commons

Berkas:Outdoor Handball Dimensions.PNG - Wikipedia bahasa ...

Berkas:Outdoor Handball Dimensions.PNG - Wikipedia bahasa ...

Handball Court Dwg » DwgDownload.Com

Handball Court Dwg » DwgDownload.Com

File:Handball Field diagram -de.svg - Wikimedia Commons

File:Handball Field diagram -de.svg - Wikimedia Commons

handball court dimensions / handball court measurements ...

handball court dimensions / handball court measurements ...

How big is a handball court compared to a basketball court ...

How big is a handball court compared to a basketball court ...

What are the markings on a handball court and what purpose do ...

What are the markings on a handball court and what purpose do ...

Handball court dimensions vector illustration.colorful ...

Handball court dimensions vector illustration.colorful ...

Handball - The court. | Britannica

Handball - The court. | Britannica

Handball court Royalty Free Vector Image - VectorStock

Handball court Royalty Free Vector Image - VectorStock

Blue Handball Court: Over 82 Royalty-Free Licensable Stock ...

Blue Handball Court: Over 82 Royalty-Free Licensable Stock ...

Frontiers | Comparative Analysis of the Offensive ...

Frontiers | Comparative Analysis of the Offensive ...

Handball Stock Illustration - Download Image Now - Court ...

Handball Stock Illustration - Download Image Now - Court ...

Detailed Measurements and Dimensions of a Handball Court ...

Detailed Measurements and Dimensions of a Handball Court ...

Handball Court Metric Dimensions Separate Layer Stock Vector ...

Handball Court Metric Dimensions Separate Layer Stock Vector ...

Handball court dimensions vector illustration.colorful ...

Handball court dimensions vector illustration.colorful ...

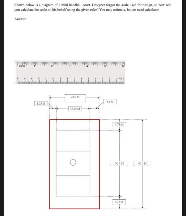
Solved Shown below is a diagram of a mini handball court ...

Solved Shown below is a diagram of a mini handball court ...

Setup for experiments I.-IV. on the one half of the handball ...

Setup for experiments I.-IV. on the one half of the handball ...

Handball Court

Handball Court" Images – Browse 203 Stock Photos, Vectors ...

Handball Court Diagram Quiz

Handball Court Diagram Quiz

Handball court isolated Stock Vector Image by ©DeCe11 #113292690

Handball court isolated Stock Vector Image by ©DeCe11 #113292690

Team handball court and position of cameraman. | Download ...

Team handball court and position of cameraman. | Download ...

Diagram Of Handball Court Vector Illustration Isolated On ...

Diagram Of Handball Court Vector Illustration Isolated On ...

Premier Handball

Premier Handball

Handball Court Dimensions & Drawings | Dimensions.com

Handball Court Dimensions & Drawings | Dimensions.com

Draw a neat labelled diagram of a Handball court giving all ...

Draw a neat labelled diagram of a Handball court giving all ...

handball court dimensions / handball court measurements ...

handball court dimensions / handball court measurements ...

Pin on Quick Saves

Pin on Quick Saves

Handball Court Stock Illustrations – 663 Handball Court Stock ...

Handball Court Stock Illustrations – 663 Handball Court Stock ...

How to Make a Basketball Court Diagram | Basketball ...

How to Make a Basketball Court Diagram | Basketball ...

International Handball Federation - IHF - Beach Handball ...

International Handball Federation - IHF - Beach Handball ...

Post a Comment for "45 draw and label a handball court"